Default sidemenu image
Search

Leave a Message

Thank you for your message. We will be in touch with you shortly.

Explore Our Properties

Property Description

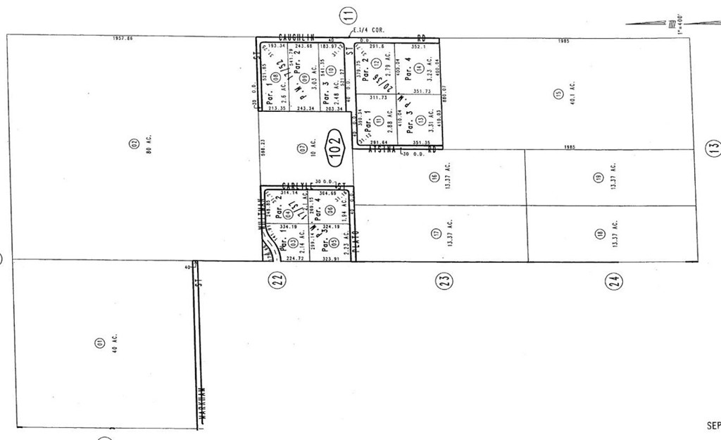
***80 ACRES!!***Located just North of El Mirage Rd. in El Mirage bordering Adelanto. Investment acreage, sub dividable to 2.5 acre lots per County of San Bernardino (Buyer to Verify ALL Aspects of the property). Utilities are close and the land is flat without noticeable drainage courses. Seller is motivated and selling at a loss. Possible Seller financing with good down payment.

Overview

Property Status
For Sale
Lot Size
80 Acres
MLS ID
HD24086302
Property Type
Land

Features & Amenities

Neighborhood
San Bernardino County
View Description
Desert, Mountain(s)
Water Source
See Remarks
Utilites
None, Sewer Not Available
Lot Features
Horse Property, Gentle Sloping, Level
Sewer
None
Sales Price
$399,000
Zoning
VCNT LND-NEC

Downloads

0 Caughlin Road

Schedule a Tour

I would love to help you see this beautiful home! As a full-service brokerage, we can help you tour. Please submit an offer, and answer questions about the buying process.

Enter a valid email

Thank you

for your interest in 0 Caughlin Road, El Mirage, CA 92301

back to page
0 Caughlin Road
Navigate

Mortgage Calculator

Estimate your monthly mortgage payment, including the principal and interest, property taxes, and HOA. Adjust the values to generate a more accurate rate.
$0,000 Your Payment 20 15 65
$0,000 Your Payment

I'm Interested In

0 Caughlin Road

or Contact

Follow Us On Instagram